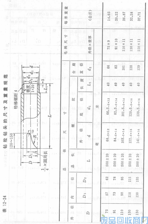
1、钻粒钻头
钻粒钻头的尺寸及重量规范,见表12-24所列。

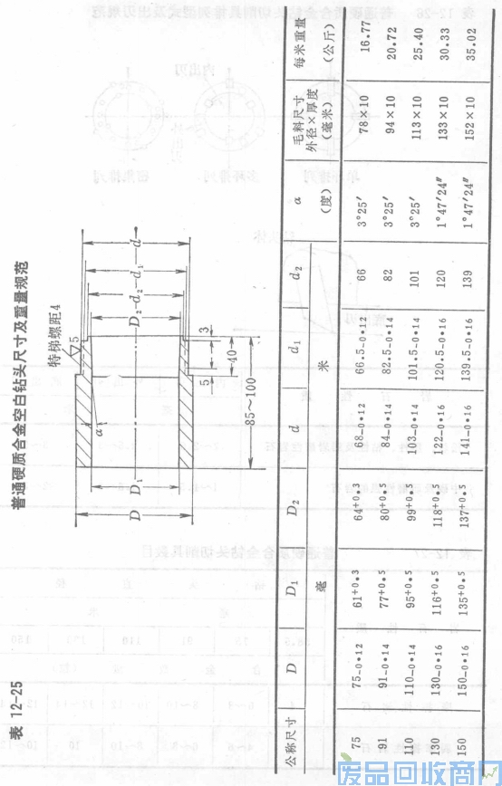
2、硬质合金钻头
硬质合金钻头种类很多,每一种地层都有一种或数种钻进效率高、使用寿命长、经济效果好的合金钻头。现将水利电力地质钻探常用的普通硬质合金钻头的有关规范分述如下。
(1)普通硬质合金空白钻头寸尺及重量规范,见表12-25所列。

(2)普通硬质合金钻头切削具排列型式及出刃规范,见表12-26所列。

(3)普通硬质合金钻头切削具数目,见表12-27所列。

(4)硬质合金镶嵌角及刃尖角,见表12-28所列。
3、钻粒钻头和硬质合金钻头的技术条件
(1)钻头料采用DZ35、DZ40和DZ45钢级制造,并采用低合金耐磨性能好的钢种。当前水电部门常用45号钢的钢管作为钻头料,其硬度参考值为洛氏HRC22~26。
(2)钻头料内外表面应光滑无折迭、轧折、离层、裂缝和结疤存在。
(3)钻头料的椭圆度和壁厚不均程度不得超过其壁厚公差范围。弯曲度直径9l毫米以下时每米不大于1毫米,直径110毫米以上时每米不大于1、5毫米。钢粒钻进用钻头料直接用作钻头,不再进行外圆加工,壁厚公差尽量取正值。
(4)钻头料每根长度3、0~5、0米,如用户同意时可以倍尺和短尺交货。
(5)包装标志和验收方法等。同岩心管规定。