Menu

VACON变频器在连铸机结晶器电磁搅拌中的应用

日期:2017-07-29来源:变频器回收发布人:钢铁侠 阅读:0

 

赵利明
宣化钢铁公司炼钢厂

摘要:文章介绍了Vacon变频器在连铸机电磁搅拌中的特殊应用,说明了系统的结构组成和工作原理。

    1 连铸与电磁搅拌理论
  
随着用户对钢材质量提出越来越高的要求,使得提高铸坯质量成为连铸生产中的首要问题。铸坯内部质量在很大程度上取决于铸坯内部是否呈现均匀而致密的等轴晶凝固组织。但是在连铸坯实际凝固过程中,由于钢水冷却速度很快,造成铸坯凝固时柱状晶的发展,往往产生“搭桥”现象,带来缩孔偏析、疏松、夹杂物聚集等缺陷。  

      由于电磁场的作用具有非接触的特点,特别适合于高温钢水这种特殊场合,连铸机的电磁搅拌(Electromagnetic stirring:EMS)技术随之应运而生,它可以显著改善铸坯质量,因此在国内外受到高度重视并得到快速发展与广泛应用。目前,炼钢厂连铸机电磁搅拌装置已经成为冶炼高性能品种钢水必不可少的设备。

      电磁搅拌的工作原理基于电磁感应定律,载流导体处于磁场中就要受到电磁力的作用而发生运动。就此而言,电磁搅拌的工作原理和异步电机相同, 搅拌器相当于电机的定子,钢水相当于电机的转子。

      由电磁搅拌器的线圈绕组产生旋转磁场,在导电的钢水中产生感应电流,感应电流与磁场作用产生电磁力,对钢水起到了搅拌作用。连铸电磁搅拌的实质是借助在铸坯液相穴中感生的电磁力来强化钢水的运动。带有电磁搅拌器的结晶器结构形式如下图所示。

VACON变频器在连铸机结晶器电磁搅拌中的应用 图图1 结晶器电磁搅拌示意2 电磁搅拌对电源的特殊要求
  
电磁搅拌系统由两大部分组成:电磁搅拌器和变频电源。
   钢水之所以能被搅拌,是由于搅拌器线圈激发的交变磁场穿透到铸坯的钢水内,在其中产生感应电流,感应电流与磁场相互作用产生电磁力,电磁力作用在钢水体积元上,从而推动钢水运动。其中感生电磁力与电流强度的平方成正比。电流越大,中心磁感应强度越高。一般情况下,结晶区电磁搅拌器要求中心磁感应强度幅值>500Gs;为保证达到磁感应强度要求,必须要有足够大的电流。这就要求变频电源必须能够长时间提供大电流,通常要在达到400A以上。
   电磁搅拌器作用在钢水中的电磁力和钢水搅拌的速度不仅与电流强度有关,而且受电源频率的影响很大。频率的选择主要和结晶器铜管的导磁率、厚度、断面等因素密切相关,它们不仅影响最大电磁力的量值,选择不当还会弱化搅拌功率。一般情况下,为了保证磁场的穿透效果,最佳搅拌频率在1-8Hz之间。一般铸坯断面大、结晶器铜管厚的电源频率取低一点;断面小、铜管薄的电源频率取高一点。
   由于大电流和钢水的热效应,搅拌器线圈温度较高,为了散热,搅拌器浸泡在冷却水中,这就要求搅拌器线圈的绝缘要很高,进而造成搅拌器线圈造价不菲。为了尽可能延长搅拌器的使用寿命,变频电源要采用低电压、大电流的设计原则,并要有平滑的输出波形,以防止输出电压中的高压峰值对线圈绝缘造成破坏。
   综上所述,电磁搅拌配套的变频电源要能够在低电压、低频率、大电流的情况下长时间可靠工作,对电磁搅拌器要提供必要的保护。另外,通常情况下,连铸机启用电磁搅拌时,会有多台大功率变频电源同时工作,这就要考虑避免对电网产生有害影响,影响其它用电设备的正常运行。
 3 VACON变频器适于电磁搅拌使用的特点
  
电磁搅拌电源基本可以分为两类:一是采用分立元件,配合PLC或单片机、工控机,组成变频电源;二是采用改装通用型变频器的方法。
   很多电源厂家通过攻关,研制出了采用分立元件的变频电源,但是由于国内电力电子技术和产品工艺相对落后,只能采用通用型控制芯片和电子技术,难以制造出高性能的交-直-交模式的专用电源;同时因为元件数目多,而生产没有规模,制造厂缺乏严格的质量控制手段,这种电源的可靠性比大规模生产的通用型变频器要低,故障率偏高,且在出现问题时不易查找到准确的故障点。
   采用改装通用型变频器的方法与采用分立元件组装相比,电源的可靠性要高很多,但并不是每一种变频器都适合用来改装。这主要是因为通用型变频器是为控制交流电机而设计的,并不适于用作电磁搅拌电源。
   Vacon公司的NXP系列变频器,与同类变频器相比较,更为适合改装成电磁搅拌用的变频电源。
Vacon变频器内部都安置了交流电抗器,可以在电网电压瞬间波动时,保护变频器的整流部分,同时也抑制了由于整流所产生的部分谐波电流对电网的影响,改善了输入到变频器的电流波形,增强了变频器抵抗电网电压浪涌的能力,同时交流电抗器还减小了由于谐波电流所产生的谐波电压,减小了对同电源系统中的其他系统的影响。变频器输出电流波形为正弦波,波形畸变率小,这对于保护搅拌器线圈十分重要。在分立元件组成的电源系统中不可缺少的隔离变压器,在使用Vacon变频器时就不再需要。
   Vacon变频器采取了齐全的保护功能,这为适应冶金系统的恶劣环境,达到高性能的要求提供了保证。例如:Vacon变频器采用了三相输出电流检测,而不是常规的二相输出电流信号检测,因此变频器能根据三相输出电流的检测值,计算三相输出电流之和,较快地判断变频器的是否接地,达到接地保护的功能,从而使得同类变频器制造出的低频电源不能实现的输出保护功能,在采用Vacon变频器制造成的低频电源上得以全部实现。另外,诸如过流保护、接地保护、欠压保护、过压保护、欠载保护、变频器低温/过热保护、过热保护、输入/输出相保护等保护功能也一应俱全。
   可以使用满足IEC61131-3标准的编程软件来编制变频器的所有控制软件是Vacon变频器最大的特点。编程软件具有与变频器硬件连接的接口文件,并且提供大至2M的用户程序空间,程序最短扫描时间为1ms,采用分时复用的操作系统方式,配合可以安装在变频器内部的 I/O 扩展卡和通讯适配器,能够编制满足特殊要求的用户程序,这为设计符合需要的应用方案提供了极大的便利条件。  4 具体实施方案及应用效果
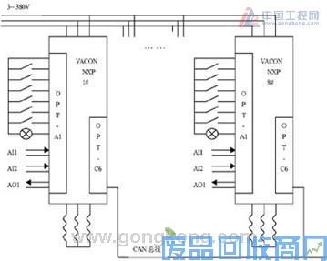
  宣钢炼钢厂四号连铸机在设计、安装电磁搅拌系统的电源、控制系统时,经过充分考察、论证后,采用了如下图所示的方案:
 
  整个系统由8套电磁搅拌装置、冷却水系统、HMI组成,其最大特点是没有安装常规情况下采用的小型PLC、单片机等控制器,而是通过在变频器内安装OPT-A1、OPT-C6接口卡,将电磁搅拌系统所有冷却水流量信号、温度信号,以及各种操作(如启动、停止、手动、自动、远程控制切换)、连锁信号,都直接接入了变频器,充分利用VACON变频器的内置PLC功能,使用Vacon NC1131-3编程软件编制符合实际需要的程序,由变频器负责运算、控制,使得变频器的控制可以与 PLC 控制有机结合,实现预期功能。这种设计使得整个系统配置简洁、结构合理,大大减少了中间环节,不仅节省投资,还提高了系统的可靠性。 VACON变频器在连铸机结晶器电磁搅拌中的应用 图 图2 电磁搅拌系统变频电源及控制系统设计方案示意    通过设置变频器参数,系统具备以下特殊功能:变频器的输出频率和输出电流可独立设置,并具备自动调节功能,以使设定值与实际值之间的偏差符合要求;变频器具备本地和远程控制方式,在本地操作时同样可以具有连续搅拌、正反交替搅拌等工作方式,正反交替搅拌工作周期可根据需要设定和修改;变频器具备完善的搅拌器线圈保护功能:如过电流、过电压、接地、过热、三相不平衡等等。   变频器使用内置的CAN总线接口与上位机之间保持通讯。上位机既可以读取变频器的状态数据,同时又可以通过对变频器参数(包括电流值、频率值等工艺参数及启停等数字控制信号参数)进行设定,来达到远程控制的目的。
    上位机系统主要完成显示电磁搅拌工艺流程,指导操作(在上位机直接选择钢种及其浇注条件后软件会自动设置搅拌工艺参数),显示、存储、打印、查询关键参数,监视设备运行状态,对重要参数超限进行报警等工作。
   这套电磁搅拌系统在四号连铸机的长时间使用表明,电磁搅拌在改善连铸坯柱状晶、搭桥、针孔,增加等轴晶区,减少成分偏析,减轻或消除中心疏松和中心缩孔等方面的效果非常明显,对提高连铸坯质量具有明显作用。而VACON变频器的稳定可靠运行,为电磁搅拌系统充分发挥作用提供了基础保证。

互联网技术信息: 沈阳seo沈阳网站建设沈阳小程序开发沈阳微信小程序开发 沈阳微信小程序沈阳做网站 , 狼智网络沈阳狼智网络

室内环保信息:培训班除甲醛  幼儿园除甲醛  酒店除甲醛  沈阳除甲醛  幼教机构除甲醛

首页
供求
电话
短信