(一)钻头体(空白钻头)
钻头体是由DZ-40地质钻探用无缝钢管制成。丝扣为地质专用特殊梯形扣,钻头上端内壁有一定锥度,以便卡取岩心。空白钻头的同心度、各端面与中心的垂直度以及各尺寸间的相互关系都应严格要求;否则会直接影响钻进效率和质量。
空白钻头的结构如图3-13所示,各种钻头的规格尺寸见表3-3。


(二)钻头上合金的数目
影响钻头上合金数目最优值的因素很多,目前还不能用理论公式来表示。一般情况下,在确定合金数目时,要综合考虑钻头直径、钻探设备能力、钻进规程、岩粉的排除及合金的冷却等条件。从理论上分析,只要保证每个合金在钻进某种岩石时的轴心压力值,合金数目的增加与钻速应成正比。但在生产实践中,情况并不如此,合金数目过多反而会使钻速下降。其原因是过密的合金(或合金组)会使合金之间的距离缩小,使岩石在大剪切时体积破碎的过程受到限制,而使岩石破碎的体积减小,钻速下降。
在确定或设计钻头上合金数目时,应考虑以下因素:
(1)在一定的岩性条件下,合金之间的距离应有一定值,以保证碎岩时能产生大剪切体进行体积破碎。
(2)在保证每个合金所需压力的情况下,在一定范围内增加合金数目就等于增加同时工作的切削量,可以提高钻进速度。
(3)确定合金数目时,还应考虑钻头体上所允许的水口数目,以保证每个合金的完全冷却与冲洗。
(4)研磨性大的岩石,要适当增加合金数目,以保证每个合金的体积磨损量不致过大。
(5)由于合金体积的磨损量与合金切削运动的路程有关,所以大口径钻头在相同转速条件下,应适当增多合金数目;钻头的外沿亦应比内沿合金数目多;或增加补强合金以保持钻头内外沿合金体积磨损量大致相同,以避免钻孔缩径。
确定钻头上合金数目时,可参考表3-4。
(三)钻头上的合金出刃
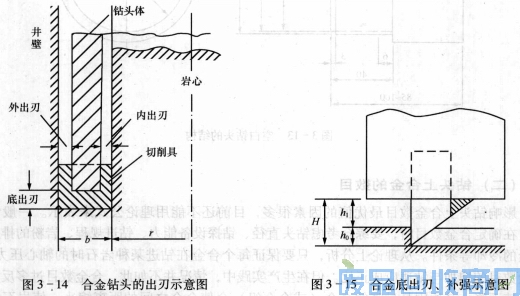
钻进时,为了使合金能顺利地切人岩石,并保持冲洗液畅通,以及减少钻头体的磨损,合金必须突出钻头体一定高度,此突出部分则称为出刃。合金出刃有内出刃、外出刃和底出刃,如图3-14所示。

外出刃是在钻头体的外侧与钻孔侧壁之间留有一定的通水间隙;内出刃是在岩心的外侧与钻头体内侧壁之间留有一定的通水问隙;底出刃是切人岩石的深度h。和保持水流冲洗的高度h1之和,即底出刃H=h0+h1,如图3-15所示。
钻头上内、外、底出刃的尺寸,应根据岩石的性质来确定:在软岩中钻进,所需轴心压力不大,为能使大量岩粉及时排除孔底,需要加大内、外、底出刃;在坚硬岩层中钻进,合金切入岩石浅,岩粉少,同时为减少回转阻力和弯曲力矩,避免合金崩刃,应减小内、外、底出刃。
不同地层钻进时,硬质合金钻头的合金出刃量可参考表3-5所列。

(四)钻头上合金的排列方式
合金在钻头上的排列形式,归纳起来可分成以下几种:
1、按阶梯破碎方式排列
图3-16所示为多环阶梯式排列底出刃的孔底状况:

(a)是二环阶梯排列,内环合金比外环合金底出刃大,因而形成孔底阶梯状;(b)是三环阶梯排列,中环合金是以超前方式比内、外合金的底出刃大,故可起到掏槽作用;(c)是四环多阶梯排列,此种钻头所镶合金较小,故称小切削具钻头;(d)是肋骨钻头的排列形式,肋骨刃与主刃高差较大。
阶梯破碎方式排列合金的目的,是使孔底增多自由面,以提高破碎效果。在5~6级以上、研磨性较大的岩石中钻进时,要注意超前刃的过快磨损或折断;否则发挥不出理想的效果。
2、按分区破碎方式排列
合金在钻头底面上的分布,除单环排列的(图3-17)外,大都采取了分区破碎方式排列,如图3-18所示。分区破碎方式排列的合金都呈内、外、中三环排列和四环排列(图3-19);合金排列的特点是沿钻头径向宽度以同心圆式排列,整个孔底宽度是按同心圆方式分区破碎的,每个合金只破碎一条环形孔底岩石。

采用分区破碎能保证合金的稳定性,减少了合金破碎岩石的宽度,因此减轻了合金所承受的负荷,增加了合金的寿命和碎岩速度。
很多现代高效率的钻头,往往是将阶梯式破碎和分区式破碎结合,组成多样化钻头。
3、密集式排列
密集式排列主要用于研磨性岩石和较硬岩石的钻进,它以成组的合金比较集中地排列在一起,有堆状排列(图3-20)和疏松排列(图3-21)两种:前者每组合金堆集在一起,互相补强,前刃掏槽,后刃扩槽,如一个单元合金;后者每组合金成疏松的一组,可完成一个宽槽的切削量。

密集式排列的硬质合金钻头有很多优点,在我国应用较为广泛。
(五)硬质合金的镶嵌角度
砸后合会绎镶嵌后所形成的各种角度,如图3-22所示。

合金的刃尖角口(也称磨锐角)的大小,对钻头耐久性和钻速有很大影响。其大小应根据所钻岩性而定。
切削角仅,也称镶嵌角。为便于切入岩石,合金的镶嵌角也不相同:切削角为90°的角叫直镶;小于90°的叫正斜镶;大于90°的叫负斜镶,如图3-23所示。

选择合金在钻头上的不同镶嵌角时,应考虑以下三点:
(1)合金在切入岩石和回转时,应有较小的阻力;
(2)钻进过程中随合金的磨损它与岩石的接触面不迅速增大
(3)在坚硬岩层钻进时,应使合金有较大的抗弯断面,以防崩刃。
在选择合金镶嵌角时,应根据所钻岩石性质和钻进规程来确定,可参考表3-6所列。
(六)钻头的水口和水槽
钻头上的水口、水槽主要作用是使孔底冲洗液畅通,并能及时冷却钻头和携带岩粉离开孔底。水口和水槽开得是否合理,直接影响着钻进效率和合金的磨损。
通常每组合金应当至少开一个水口,水口的总面积大于钻头与岩心之间的环状间隙的面积,以免因过水面积太小而引起不必要的水头损失。水1:3的大小应能满足冲洗液畅通、很好地排除岩粉和及时冷却钻头的要求。一般在松软、膨胀、缩径等地层钻进时,应加大水口,甚至增加肋骨进一步扩大孑L壁问隙,以保证正常冲孔。水口的位置应尽可能地接近合金的前边,以使冲洗液的流动中心靠近合金前棱。目前,各地勘单位应用的钻头水VI形式如图3-24所示,有矩形(a)、梯形(b)、半圆形(c)、偏斜形(d)及弧形(e)等。

钻头上的水槽和水1:3连接,其目的是补充增加钻头内、外环形间隙过水断面的不足。水槽有直槽和与顺钻头旋转方向成60°~80°的斜槽两种;水槽一般深1、5~2mm,宽7~10mm。