1、使用范围
1.1 电缆沟
电缆沟是用以敷设和更换电力电缆设施的地下管道,也是被敷设电缆设施的围护结构,有矩形、圆形、拱形等管道结构形式。
电缆沟适用于道路、厂区、建筑物内电缆出线集中且不需采用电缆隧道的区域;城镇人行便道或绿地等区域。但在盖板不可开启区域,不应选择电缆沟。
一般在变电站出线、小区道路、电缆较多、道路弯曲或地坪高程变化较大的地段,可以采用电缆沟与电缆排管、电缆井等进行相互配合使用。
电缆沟为有盖板的沟道,敷设和维修电缆时都必须揭开盖板,很繁琐、不方便,沟内还容易淤积赃物、积水。但因土建施工简单、造价低,常在工程中采用。
电缆沟内安装有电缆支架,电缆支架通常由金属材料做成,通过焊接或用螺丝固定在沟壁上。电缆由支架托住,与沟底保持着一定的距离。
电缆沟中的电缆通常会采取防火措施,包括涂刷防火涂料、封堵隔离等。
电缆沟在进入建筑物(包括控制室和开关室)处,设有封堵隔墙,以防止电缆着火时烟火向室内蔓延扩散。此外,还可防止小动物进入室内。
电力电缆沟敷设的优点:
电缆沟检修、更换电缆较方便,灵活多样,转弯方便,可根据地坪高程变化调整电缆敷设高程。
电力电缆沟敷设的缺点:
电缆沟施工、巡检及更换电缆时须搬运大量盖板,施工时外物不慎落入沟时易将电缆碰伤。

▲图 电缆沟
1.2 电缆工井
电缆井适用于电缆排管、电缆沟敷设中电缆接头、电缆分支、、预留电缆余量及电缆施工等工艺要求的情况。
电缆井根据电缆敷设工艺要求,采用人员下井工作模式时,电缆井深度不小于1.9m,其井盖尺寸应满足人员上下井;当采用人员不下井工作模式时,电缆井深度可适当调整,其盖板可开启。

▲图 电缆工井
2、类型
2.1 电缆沟
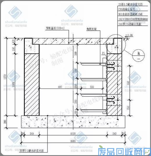
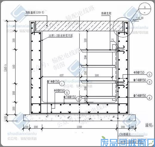
电缆沟按沟体结构分为砖砌电缆沟、钢筋混凝土电缆沟.一般在非车行道不承受重力外部荷载较小的地方可以采用砖砌电缆沟,有条件优先采用钢筋混凝土型式;车行道外部荷载较大采用钢筋混凝土型式电缆沟。

▲图 单侧支架砖砌电缆沟示意图

▲图 双侧支架砖砌电缆沟示意图

▲图 单侧支架现浇电缆沟示意图

▲图 双侧支架现浇电缆沟示意图
2.2 电缆工井
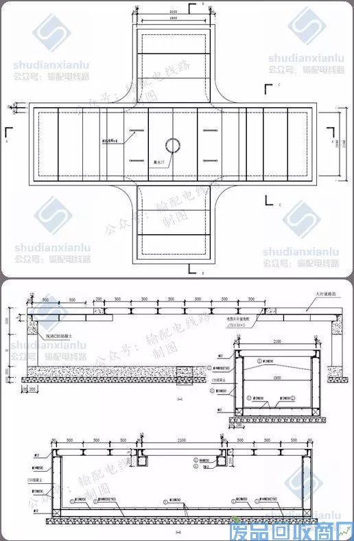
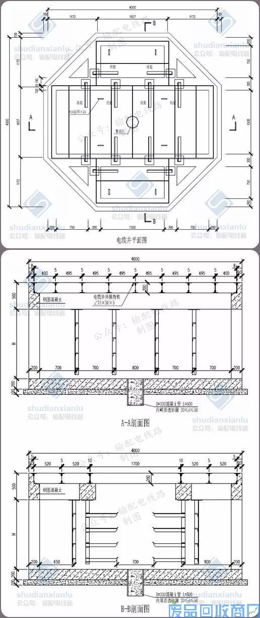
电缆井土建设计应满足电气尺寸要求,遵循结构安全可靠、经济合理、技术先进、坚固耐久、施工简便为原则进行。电缆井可采用砖砌或混凝土结构,应满足可能承受的荷载和适合环境耐久的要求,根据工程情况设置直线井、转角井、三通井、四通井和八角形四通井等型式。

▲图 直线井示意图

▲图 转角井示意图

▲图 三通井示意图

▲图 四通井示意图

▲图 八角形四通井示意图
直线井用于电缆通道的直线段检查或布置中间接头处。转角井用于电缆通道的转角处。三通井用于电缆通道的直线加转角处。四通井用于两个电缆通道的交叉处。八角形四通井用于两个电缆通道的交叉且场地尺寸受限制处。
3、敷设要求
3.1 电缆沟
电缆沟的尺寸除应按电网规划敷设电缆根数来选择外,还须考虑光缆通信及备用电缆敷设数量,以及不同工作电压电缆之间的敷设要求。电缆沟的纵向排水坡度不得小于0.5%,沿排水方向适当距离宜设置集水井及其泄水系统,必要时实施机械排水。
现浇混凝土电缆沟变形缝间距不宜超过30m,缝宽宜为30mm,且应贯通全截面,变形缝处应采取有效防水措施,处在气温年较差(历年最热月平均气温和最冷月平均气温之差)大于35度的冻土区变形缝间距不宜超过10m,处在气温年较差不大于35度的冻土区变形缝间距不宜超过15m。
明开挖电缆沟的地基承载力特征值不应小于100kPa,如地基存在软弱下卧层、 淤泥等不良地质现象,应根据具体工程地质条件,按相关规范要求进行处理。
电缆沟内外壁均以20mm厚1:2砂浆(掺入水泥重量5%防水剂)光面,钢筋的保护层厚度不小于30mm,外露铁件均须做热镀锌防腐处理。
电缆支架及其固定立柱的机械强度,应能满足电缆及其附件荷重以及施工作业时附加荷重的要求,并留有足够的裕度。上下层支架的净间距不应小于200mm。 电缆支架主要有角钢支架和复合材料支架两种,本模块设计图纸以镀锌角钢支架为例。
电缆沟敷设方案盖板宽为500mm,长度分为1350、1450、1850、2150mm 四种,厚度根据荷载分为120、200mm两种,具体选择时依据盖板使用现场的情况定。
3.2 电缆工井
电缆井土建设计应满足电气尺寸要求,遵循结构安全可靠、经济合理、技术先进、坚固耐久、施工简便为原则进行。电缆井可采用砖砌或混凝土结构,应满足可能承受的荷载和适合环境耐久的要求,根据工程情况设置直线井、转角井、三通井、四通井和八角形四通井等型式。
3.2.1 电缆井主要使用原则
(1)电缆井长度根据敷设在同一工井内最长的电缆接头以及能吸收来自排管内电缆的热伸缩量所需的伸缩弧尺寸决定,且伸缩弧的尺寸应满足电缆在寿命周期内电缆金属护套不出现疲劳现象。
(2)电缆井间距按计算牵引力不超过电缆容许牵引力来确定,直线段一般控制在50m左右。
(3)电缆井需设置集水坑,泄水坡度不小于0.5%。
(4)非全开启电缆井设人孔2个,用于采光、通风以及施工和运行人员上下,人孔基座的具体预留尺寸及方式,各地可根据实际运行情况适当调整。
(5)安全孔直径不小于800mm,并在安全孔内设置爬梯,安全孔井盖应采用双层结构,材质应满足载荷及环境要求,以及防盗、防水、防滑、防位移、防坠落等要求,同一地区的井盖尺寸、外观标识等应保持一致。
(6)电缆和中间接头密集及其他重要电缆井,可根据实际情况参照电缆隧道设置环境监控系统。
(7)电缆井内电缆支架等所有铁附件均需可靠接地,其接地电阻不大于10Ω。
(8)砖砌电缆井在盖板开启时井侧壁应做好支撑防护措施,以防沟壁倒塌。
(9)电缆井内外侧壁做聚合物防水砂浆防水层,与预埋管结合处抹成45°喇叭口(井内侧),井底向排水孔方向应有0.5%的坡度。
(10)电缆支架主要有角钢支架和复合材料支架两种,本模块设计图纸以镀锌角钢支架为例。
3.2.2 电缆井选型说明
(1)电缆排管选择适用电缆井时,电缆排管断面高度与电缆井净深能完全满足,只需校验电缆排管断面宽度与电缆井净宽的对应关系:
W = D1+ 2×d1 +(列数-1)×a + D2 + 2×d2 + 2×s
式中:
D1—— 电缆管内径(mm);
a —— 管中心间距(mm);
d1 —— 电缆管管壁厚度(mm);
D2 —— 通讯管内径(mm);
d2 —— 通讯管管壁厚度(mm);
s——最外侧电缆排管与电缆井井壁内侧工作空间(mm)。
以电缆排管3×3断面为例说明:
按照电缆管内径(D1) 175mm,管中心间距(a)250mm,电缆管壁厚度(d1)8mm,通讯管内径(D2)100mm,通讯管壁厚度(d2)5mm,最外侧电缆排管与电缆井井壁内侧工作空间为100mm;则电缆井最小宽度W为:
W = 175+ 2×8 +(3-1)×250 + 100 + 2×5 + 2×100=1001(mm)
电缆排管3×3断面选择配合使用的电缆井尺寸,净宽不小于1001mm,设计中一般选择净宽1200mm即满足要求。长度根据是否放置电缆中间接头等情况自行选择。
其他形式的排管断面配合适用的电缆井选择以此类推。
(2)电缆沟选择适用电缆井尺寸时,需要求电缆井净宽与净深不小于电缆沟的净宽与净深。
3.2.3 电缆井内电缆交叉情况


▲图 四通井交叉示意图


▲图 八角形四通井交叉示意图
4、附属设施要求
电缆沟敷设中,标识桩在敷设路径起、终点及转弯处,以及直线段每隔20m应设置一处,当电缆路径在绿化隔离带、灌木丛等位置时可延至每隔50m设置一处。
电缆盖板上表面应设置电力标识。

▲图 电缆直埋标识块示意图

▲图 电缆标识桩及安装示意图
END
本文来源网络。我们注重分享,版权归原作者。