——以此篇献给爱生活、有情怀的你!
话说龙湖是以别墅起家,
洋房传名,以名景台初入济南。
凭借一年来的 用心、卓著,深得济南人厚爱,
单价高于周边项目1500多,
销售业绩全面飘红,这可不就是因为产品好,
够符合有情怀的你的调调!
近期,总有朋友问询“底跃”这个产品,价格200多万,住出别墅体验,地上一层,地下可以做两层,安于闹中取静,既有好友为邻,
还可以在院子里看晚霞,赏风景。
南北双院哦,98-120平米(建筑面积),够解你风情!!
好房子不就是住起来舒心,带朋友来有面子,留足私密空间,孩子有地方玩耍?!
再有几个同样有调调的邻居住在隔壁,续杯喝茶,
转盏换酒,一起赏个明月看看花?
“你说人生图啥?”
说这么多废话,带你走进典藏户型介绍——

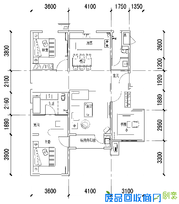
(地上136㎡底跃产品)

地上一层
地上为大平层设计,公摊不到15%,客厅、餐厅、卧室,
空间尺度都大且方正,开阔视野,舒心生活。

地下一层
地下面积足足有约100-120㎡(建筑面积),5.05米挑高,
两层生活体验,万能空间,随你来变。

南北双院
种花养草,
甚至给孩子块预留地捏捏泥人种点菜……
一把太阳伞,一壶下午茶,夕阳西下,院落人家。
136㎡(建筑面积)地上平层+100-120㎡(建筑面积)5.05米挑高地下+98-120㎡私属庭院,这都是你的!
以下为我能想象的底跃生活,仅为示意,不做参考!
地上一层


大平层设计,空间开阔
南北通透,与自然亲密接触
双南卧,尽情享受阳光灿烂
客厅观景、步入,让院子生活充分舒展。
如果我只在这个地方做文章,你大可不必用心看,
所以,我且把时间往下延展,
充分演示地下部分以及院子。

可以设计成古典欧式实木楼梯稳重、有质感(仅为示意)

旋转楼梯,造型时尚

5.05米层高地下怎么用?
地下私藏空间,你可用于:儿童游乐室、影音室、健身房、棋牌室、私藏空间(酒窖)等。
5.05米层高——挑空设计尊贵空间,居家礼宾


影音室——如此私属空间大片体验何须去影院

红酒窖——红酒、雪茄、是时候败败家了

儿童主题欢乐房间——孩子最安全和放松的娱乐场所

健身房——现代人总有点好运动的爱好,金钱都乃身外,身体才是你自己的……

南北院落
我院子的大概模样
